Marketing Imagery © 2014-2023 TwoTyresDesign, LLC

AUTOSHOP

COMING SOON!

what where who.png
services.png
Back to Projects

Two Tyre’s Design collaborated with Eden’s on the development of a space located in the Union Market area of Washington, DC. The building, which housed an old auto body repair shop, was to be turned into a multi-function space for events such as corporate meetings, parties or weddings. The goal of the project was to create a new identity for the area while taking advantage of unique existing elements: a formal meeting space meets lounge vibe. The space needed a warm, leisurely feeling to invite guests: Dining tables and chairs, couches, area rugs, an area rug and a chandelier were added to create accomplish that vibe.

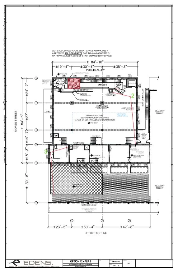
floor_plan.JPG

Process

Working from provided PDF floor plans, elevations, and photographs along with CAD, Two Tyre’s created a 3-D model. Along with Edens, we created the interior design and layout. Using new themes as well as existing architecture and materials, a new identity was created for the space.

CAD plans

CAD plans


Website: Union Market Auto Shop

Go to the Union Market website to book your

event at the Auto Shop!

CONTACT US